【中古物件】広島県福山市手城町4丁目 4DK 5,480万円

目次
現地内覧予約
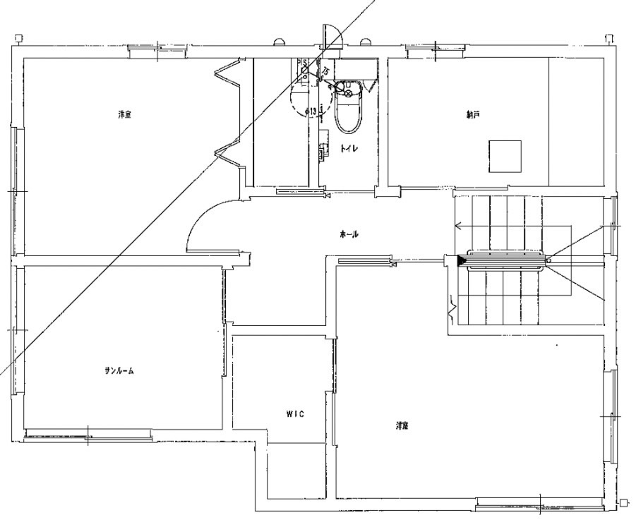
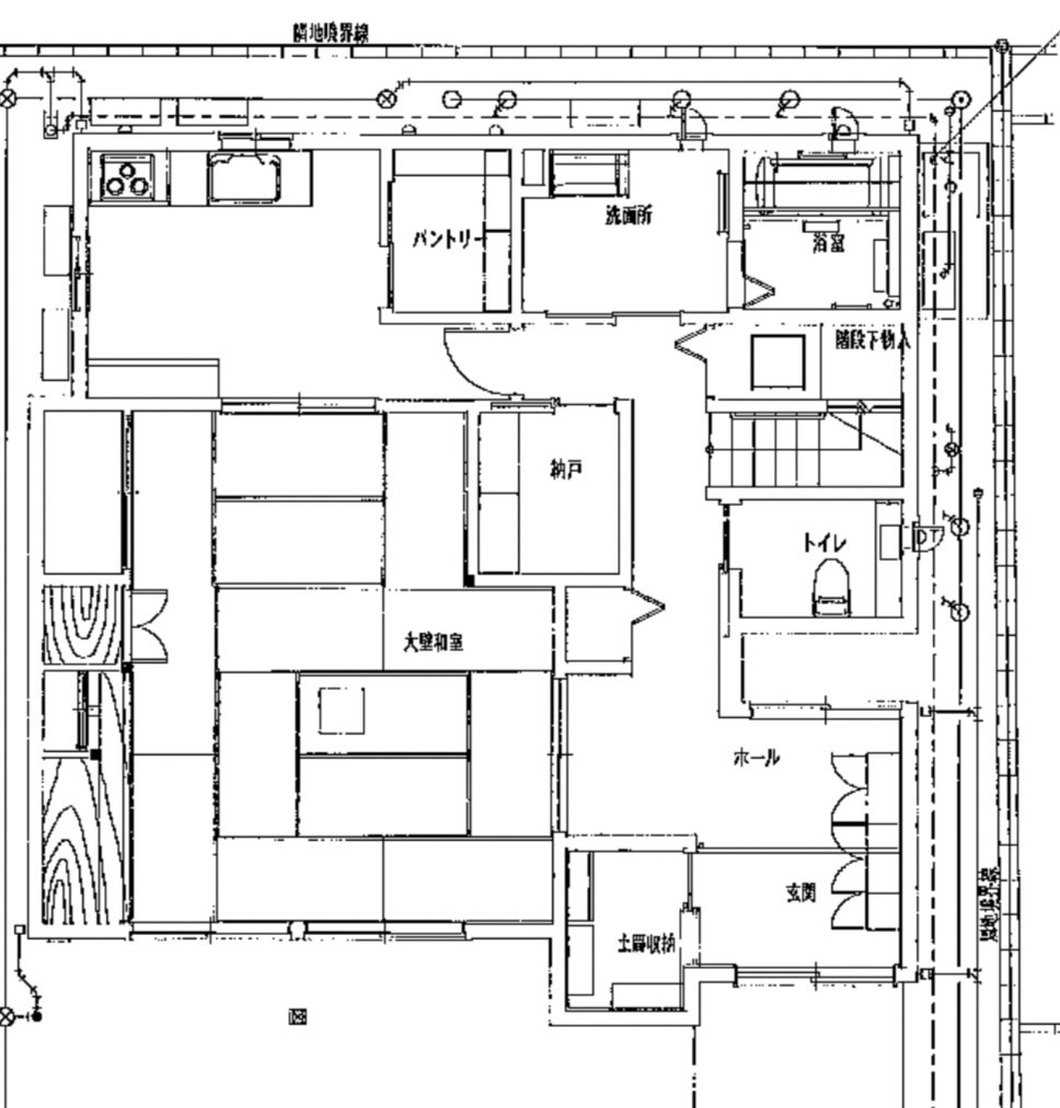
広島県福山市手城町4丁目 4DK
中古物件 物件詳細
| お問い合わせ番号 | 426 |
| 所在地 | 福山市手城町4丁目26付近 |
| 価格 | 5,480万円 |
| 土地面積 | 290.19㎡ \87.78坪 |
| 建物面積 | 141㎡/42.65坪 |
| 用途地域 | 第一種住居地域 |
| 都市計画 | 市街化区域 |
| 容積率 | 200% |
| 建蔽率 | 60% |
| 校区 | 手城小学校・一ツ橋中学校 |
| 築年月 | 2022年8月 |
| 構造 | 木造 |
| 土地権利 | 所有権 |
| 地目 | 宅地 |
| 建築確認番号 | – |
| 引渡日 | 相談 |
| 取引態様 | 一般媒介 |
| POINT! | ☑駐車2台可 ☑積水ハウス ☑独立洗面台 ☑風通し良好 ☑閑静な住宅街 ☑パントリー ☑収納たっぷり ☑3口IHコンロ ☑お庭 ☑和室 |
| 周辺環境 | 🛒ラムー店・・車で2分(400m) 🏪セブンイレブン手城店・・・車で3分(850m) 🏥もりかわ内科クリニック・・・車で2分(450m) 🏫手城こども園・・・車で2分(550m) 🏫手城小学校・・・徒歩5分(350m) 🏫一ツ橋中学校・・・徒歩5分(280m) |
































